



















































Vuorimestari 10, Kärki, Seinäjoki
Kärki
Seinäjoki Paritalo 5h+k+2*kph+khh+s+terassi+parveke+ak+ap
Hinta
275 000 €
Koko
102 m²
Vuosi
2024
Hyvin varusteltu maalämpöhuoneisto!
NÄYTTÖ 24/7-asuntoesittely. Astu sisään asuntoon ja liiku kohteessa vapaasti 3D-esittelyn avulla ilmoituksen linkin kautta!
Myynnissä moderni ja energiatehokas perheasunto Seinäjoen Kärjen uudella alueella.
Tämä neljän makuuhuoneen, 102 m² paritalohuoneisto tarjoaa laadukasta asumista A-energialuokan maalämmöllä ja huolellisesti suunnitellulla pohjaratkaisulla.
Asunnon pääkohdat:
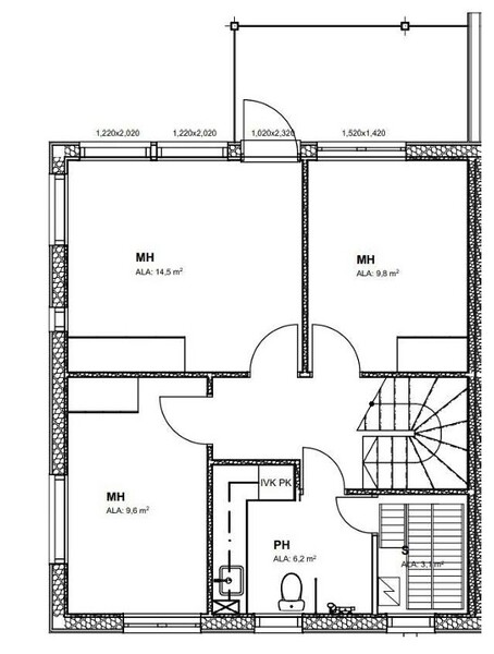
+4 makuuhuonetta, joista yksi alakerrassa ja kolme yläkerrassa.
+2 kylpyhuonetta + sauna ja kodinhoitotilat.
+Vesikiertoinen lattialämmitys (maalämpö) kauttaaltaan.
+Ilmalämpöpumppu sisältyy hintaan.
+Valoisat tilat, lähes lattiaan saakka ulottuvat ikkunat olohuoneessa.
+Modernit led-valot sisätiloissa kauttaaltaan ja sisätilojen korotettu kattokorkeus.
Hintaan sisältyy:
Autokatospaikka ja autopistokepaikka.
Varaus sähköauton lataukselle.
Sijainti:
Kärjen kehittyvä asuinalue on lapsiperheiden suosimaa rauhallista aluetta.
Alueella on myös leikkipuistoja ja hyvät ulkoilumahdollisuudet.
Kärjen alueen jatkuvaa kehitystä kuvaa myös se, että Itäväylän
varteen noin 1,5 kilometrin päähän myytävästä asunnosta on
kaavoitettu valmiiksi tilat vähittäiskaupan suuryksikölle.
Kohteesta on erinomaiset liikenneyhteydet itäväylää pitkin
pohjoisen Seinäjoen ja Nurmon (Atria) suuntaan sekä etelään
Tampereen suuntaan. Myös kulku Seinäjoen keskustaan ja
rautatieasemalle käy vaivattomasti Ruukintien kautta, joka
päättyy rautatieaseman edustalle.
Päiväkoti alle kilometrin päässä ja uusi alakoulu valmistunut päiväkodin viereen.
Ulkoilureitit alkavat huoneiston välittömästä läheisyydestä kadun päästä.
Seinäjoen keskustaan autolla vain noin 12 minuutissa.
As Oy Seinäjoen Vuorimestari 10 on omalla tontilla sijaitseva viihtyisä ja velaton asunto-osakeyhtiö. Yhtiön kaikki kuusi asuntoa ovat saman kokoisia perheasuntoja.
Edulliset asumiskustannukset, laadukas varustelu ja erinomainen sijainti päättyvän kadun päässä tekevät tästä kodista loistavan valinnan.
Sovi oma näyttöaika paikanpäälle!
Lisätietoa:
Matti Leskinen
yrittäjä, ekonomi, LKV
julkinen kaupanvahvistaja
Puh. 040 8494 373
matti.leskinen@asuntoekonomi.fi
Ostotarjouksen voit jättää vaivattomasti verkkopalvelumme kautta:
https://asuntoekonomi.fi/asunnon-ostotarjous/
Mietitkö asuntosi myyntiä? Avaa ovesi ja päästä asiakas tutustumaan kotiisi. Hoidamme kaiken muun edullisella kiinteällä välityspalkkiolla. Asunto-osakkeet 2600 € , omakotitalokiinteistöt 3600 €.
Kysy maksuton asuntoarvio: www.asuntoekonomi.fi
Varaa esittelyaika
Kohdenumero | 20815902 |
---|---|
Sijainti | Vuorimestari 10, 60200 Seinäjoki |
Omistusmuoto | Oma |
Huoneistoselitelmä | 5h+k+2*kph+khh+s+terassi+parveke+ak+ap |
Huoneita | 5 h |
Hallintamuoto | Asunto-osakeyhtiö |
Tyyppi | Paritalo (osake) |
Asuintilojen pinta-ala | 102 m² |
Kerros | 1-2/2 |
Vapautuminen | sopimuksen mukaan |
Kohteen kunto | Hyvä |
Energialuokka | A2018. |
Rakennusvuosi | 2024 |
Käyttöönottovuosi | 2024 |
Velaton hinta | 275 000 € |
---|---|
Myyntihinta | 275 000 € |
Velkaosuus | - |
Vuokrattu | Ei |
Vastikkeet | |
---|---|
Huoneiston yhtiövastike yht | 255 € / kk |
Rahoitusvastike | 0 € / kk |
Hoitovastike | 255 € / kk |
Muut maksut | kylmä vesi 5,06 €/ m3, lämmin vesi 10,02 €/m2. |
---|
Lämmitysmuodot |
|
---|---|
Oma sauna | Kyllä |
Parveke | Kyllä |
Antennijärjestelmä | Kaapeli-tv |
Auton säilytys | Yhtiössä huomioita sähköauton lataus. Tämän hetkisellä liittymällä 100A voidaan ladata 1-2 sähköautoa 16A voimapistorasialla. Nostamalla syöttökaapelin sallimaan max 160A tehoon saadaan kaikille autokatospaikoille 16A voimapistorasialta täyslatausteho. |
Palvelut | |
---|---|
Koulu | Päiväkoti n. 700 m. Uusi alakoulu valmistunut päiväkodin naapurustoon. Suora turvallinen kulkuyhteys kevyen liikenteen väyliä pitkin. |
Palvelut | K-Market Kärki n. 1,5 km, S-Market Pajuluoma n. 2 km. |
Liikenneyhteydet | |
---|---|
Liikenneyhteydet | Lähiliikenteen bussipysäkit Seinäjoen keskustaan ja takaisin Falanderinkadulla n. 200 m. Erinomaiset kulkuyhteydet autolla läheistä Itäväylää pitkin pohjoisen ja etelän suuntaan. |
Muut säilytystilat |
|
---|---|
Muu varustelu |
|
Materiaalit | |
---|---|
Kattomateriaali | Kattomateriaalit: Kattomateriaalit: Valkoinen maalattu kipsi. Sisäkattokorkeus sekä alakerrassa että yläkerrassa perinteistä korkeampi n. 265 cm. |
Katto | |
---|---|
Kate | pelti Ruukki Classic |
Rakennusmateriaalit | |
---|---|
Käytetyt rakennusmateriaalit |
|
Keittiö | |
---|---|
Keittiön varustelu | Keittiön välitilassa ja katossa on led-valaistus. Lattia: vinyyli Seinät: maali Laadukkaat kodinkoneet: Aeg induktioliesitaso/tuuletin, Aeg erillisuuni, Aeg integroitu mikro, Aeg kalusteisiin integroitu astianpesukone 60 cm. Siemens jääkaappi/pakastin 70 cm. |
Kylpyhuone | |
---|---|
Kylpyhuoneen kuvaus | Kylpyhuoneet alakerrassa ja yläkerrassa. Molemmissa katon kiinteä led-valaistus ja wc-istuimet sekä suihkut. Yläkerran kylpyhuoneen yhteydessä on hyvät kodinhoitotilat, yläkaapistot, alakaapistot ja laskutaso. Peilikaapisto sekä allaskaapisto.Alakerran kylpyhuoneessa on peilikaappi allaskaapilla, suihku ja wc-istuin. Paneloitu lämpöhaapa sisäkatto. Varustus: lattialämmitys Lattia: laatta. Seinät: kaakeli. |
Kylpyhuoneen varustelu |
|
Sauna | |
---|---|
Saunan kuvaus | Ikkunalla varustettu sauna yläkerran kylpyhuoneen yhteydessä. Saunassa kuituvalaistus. Seinäpaneelit, kattopaneelit ja lauteet lämpöhaapaa. |
Kiuas |
|
Saunan lattia |
|
Saunan seinät |
|
Makuuhuone | |
---|---|
Makuuhuoneen kuvaus | Alakerrassa yksi makuuhuone.Yläkerrassa kolme makuuhuonetta. Kaikissa makuuhuoneissa on kaapistot ja katon kiinteä led-valaistus. Yläkerran 14,5 m²:n suuruisesta oleskeluhuoneesta/makuuhuoneesta on käynti parvekkeelle. Molemmissa yläkerran päätymakuuhuoneissa on ikkunat kahdella seinällä. Lattia: vinyyli Seinät: maalattu. |
4 |
Parveke | |
---|---|
Parveke |
|
WC-tilat | |
---|---|
WC-tilojen kuvaus | Wc-istuimet molempien kylpyhuoneiden yhteydessä. |
Koko | 5 846 m² |
---|---|
Omistus | Oma |
Kaavoitustilanne |
|
Kaavoitustiedot | Seinäjoen kaupunki |
Nimi | As Oy Seinäjoen Vuorimestari 10 |
---|---|
Huolto | Taloyhtiön hiekoituksesta ja aurauksesta vastaa Easy palvelut Oy |
Taloyhtiön autopaikat |
|
Huoneistojen lukumäärä | 6 |
Taloyhtiössä |
|
Taloyhtiössä muuta | Huoneistokohtainen koneellinen ilmanvaihto LTO. Taloyhtiölaajakaista. Tontin hallinnanjakosopimus naapuriyhtiön kanssa. Oma tontti on jaettu hallinnanjakosopimuksella asunto-osakeyhtiöiden hallitsemiin alueisiin. |

Nimi | Leskinen Matti |
---|---|
Sähköposti | matti.leskinen@asuntoekonomi.fi |
Puhelin | 040 8494 373 |
Yrityksen nimi | LKV Asuntoekonomitoimisto Oy |
Toimiston nimi | LKV Asuntoekonomitoimisto Oy |
Yrityksen nimi | LKV Asuntoekonomitoimisto Oy |
---|---|
Toimiston nimi | LKV Asuntoekonomitoimisto Oy |
Osoite | Loukontie 7, Seinäjoki |
Toimiston puhelin | 040 8494 373 |
Toimiston sähköposti | matti.leskinen@asuntoekonomi.fi |