Puukholleri 2, Kärki, Seinäjoki

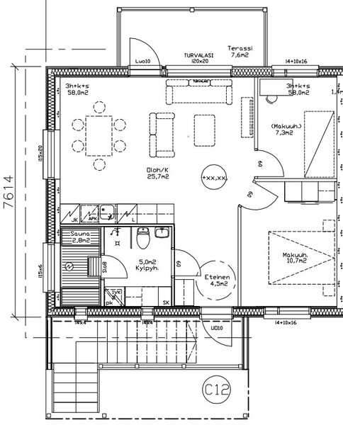
Kärki Seinäjoki Luhtitalo 3h+k+s+lasitettu terassi+(autokatos)

Vuokra
900 € / kk

Koko
58 m² / 65,60 m²

Vuosi
2023

Tee ostotarjous

Kaunis, moderni ja todella valoisa hyvin varusteltu maatason uudehko päätykolmio.

Olohuoneessa on lähes lattiaan saakka ulottuvat ikkunat jotka tuovat runsaasti luonnonvaloa huoneistoon. Olohuoneesta on käynti terassille, joka on lasitettu kauttaaltaan. Pihat asfaltoitu. Yhtiön tontin ympärille istutetaan viheraitaus, myös tämän asunnon takapihan taustalle.

Huoneiston sisäkatoissa on kauttaaltaan upotetut led-valot. Vaaleat pinnat ja tyylikkäät kiintokalusteet luovat huoneistoon raikkaan ilmeen.

Yhtiössä on lämmitysmuotona maalämpö miellyttävällä vesikiertoisella lattialämmityksellä. Maalämmön lämmityskustannus sisältyy vuokraan. Asunnon saa viilennettyä kesähelteillä varustukseen kuuluvalla ilmalämpöpumpulla.

Eteisessä on peililiukuovikaapisto ja laattalattia. Asunnolle kuuluu lisäksi oma lämmin varasto yhtiön talousrakennuksessa. Autokatospaikka 25 euroa/kk vuokrataan erikseen asunnon vuokraajalle. Vesi ja sähkö kulutuksen mukaan. Valokuidun perusnopeus 100M sisältyy vuokraan. Huoltoyhtiö hoitaa kaikki pihatyöt.

Kohteesta on erinomaiset liikenneyhteydet itäväylää pitkin pohjoisen Seinäjoen ja Nurmon (Atria) suuntaan sekä etelään Tampereen suuntaan. Myös kulku Seinäjoen keskustaan ja rautatieasemalle käy vaivattomasti Ruukintietä pitkin, joka päättyy rautatieaseman edustalle.

Kärjen uusi asuinalue on nopeasti kasvava, kehittyvä ja haluttu asuinalue. Kaupat ja koulut sijaitsevat lähistöllä. Alueella on myös leikkipuistoja ja hyvät ulkoilumahdollisuudet.

Vuokralaisen luottotiedot tarkistetaan. Ei lemmikkejä.

Lisätietoa ja sovi näyttöaika paikanpäälle:
Matti Leskinen
yrittäjä, KTM, LKV
julkinen kaupanvahvistaja
Puh. 040 8494 373
matti.leskinen@asuntoekonomi.fi

Varaa esittelyaika

Varaa esittelyaika

Kohdenumero 20078727
Sijainti Puukholleri 2, 60200 Seinäjoki
Huoneistoselitelmä 3h+k+s+lasitettu terassi+(autokatos)
Huoneita Kolmio
Tyyppi Luhtitalo (huoneisto, vuokranantaja)
Asuintilojen pinta-ala 58 m²
Kerros 1/2
Vapautuminen 01.11.2025
Kohteen kunto Hyvä
Energialuokka A2018.
Rakennusvuosi 2023
Käyttöönottovuosi 2023
Kyseessä alivuokraus Ei
Kyseessä jälleenvuokraus Ei
Vakuus 1kk vuokra + 2kk henkilötakaus tai 2kk vuokra ilman henkilötakausta.

Vuokrattu Ei
Vuokra 900 € / kk

Muut maksut Autokatospaikka 25 euroa/kk. Käyttösähkö omalla sopimuksella kulutuksen mukaan. Vesi kulutuksen mukaan, kylmä vesi 5,06 euroa/m3 ja lämmin vesi 13,50 euroa/m². Yhtiössä on Elisan valokuituliittymä 100M perusnopeudella, johon vuokralaisella on mahdollisuus avata sopimus Elisalta perusnopeudella 0 euroa/kk.

Lämmitysmuodot
  • maalämpö
Oma sauna Kyllä
Antennijärjestelmä Kaapeli-tv
Lemmikit sallittu Ei

Kalustettu Ei
Muut säilytystilat
  • muu erillinen varasto
Muu varustelu
  • kiinteät valaisimet
Katto
Kate huopa
Rakennusmateriaalit
Käytetyt rakennusmateriaalit
  • puu
  • betoni
Keittiö
Keittiön varustelu Keittiön välitilassa ja katossa led-valaistus. Varustus: jääkaappi/pakastin, liesituuletin, integroitu astianpesukone. Liesi: induktio. Työtasot: laminaatti. Seinät: maalattu
Kylpyhuone
Kylpyhuoneen kuvaus Katossa kiinteä led-valaistus. Peilikaappi ja allaskaapisto sekä korkea pyykkikaappi ja laskutaso. Varustus: suihku, suihkuseinä, pesukoneliitäntä, paikka pesutornille, lattialämmitys, wc-istuin. Lattia: laatta. Seinät: kaakeli
Sauna
Kiuas
  • sähkökiuas
Saunan lattia
  • laatta
Saunan seinät
  • puu
Makuuhuone
Makuuhuoneen kuvaus Makuuhuoneissa kaapistot. Seinät: maalattu.
2

Koko 5 750 m²
Omistus Oma
Kaavoitustilanne
  • Asemakaava

Nimi As Oy Seinäjoen Puukholleri 2
Huolto Huoltoyhtiö
Taloyhtiön autopaikat
  • Autopistokepaikkoja: 16
  • Autokatospaikkoja: 17
  • Piha-autopaikkoja: 5
Huoneistojen lukumäärä 23
Taloyhtiössä
  • kaapeli-tv
  • Huoneistokohtaiset varastot

Nimi Leskinen Matti
Sähköposti matti.leskinen@asuntoekonomi.fi
Puhelin 040 8494 373
Yrityksen nimi LKV Asuntoekonomitoimisto Oy
Toimiston nimi LKV Asuntoekonomitoimisto Oy

Yrityksen nimi LKV Asuntoekonomitoimisto Oy
Toimiston nimi LKV Asuntoekonomitoimisto Oy
Osoite Loukontie 7, Seinäjoki
Toimiston puhelin 040 8494 373
Toimiston sähköposti matti.leskinen@asuntoekonomi.fi
Takaisin kohdelistaan