Meijerikatu 6 B 9, Jouppi, Seinäjoki

Jouppi Seinäjoki Rivitalo 2h, k, ph, s, lasit.terassi, autokatos, varasto

Hinta
164 900 €

Koko
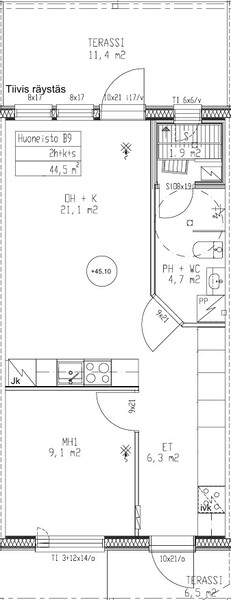
44,50 m² / 55,90 m²

Vuosi
2027

Tee ostotarjous

ENNAKKOMARKKINOINNISSA UUSIA KORKEATASOISIA RIVITALOKOTEJA KÄVELYETÄISYYDELLÄ SEINÄJOEN KESKUSTASTA.

Kohteesta on jo varattuna 7/10 asuntoa. Nyt on oikea hetki toimia. Tarjolla on harvinainen mahdollisuus hankkia moderni, saunallinen kaksio omalla suurella lasitetulla terassilla aivan keskustan tuntumasta. Kohde toteutetaan turvallisena RS-kohteena ja valmistuu viimeistään elokuussa 2027.

Asunnon suunnittelussa on panostettu valoisuuteen ja toimivaan arkeen. Olohuoneessa lähes lattiaan saakka ulottuvat suuret ikkunat ja terassin lasiovi tuovat runsaasti luonnonvaloa. Yhtenäinen olohuone/keittiö -tila (21,1 m²) tarjoaa erinomaiset puitteet sisustamiseen. Tilaan mahtuu vaivatta suurempikin ruokailuryhmä, sohvaryhmä ja tv-kokonaisuus. Lisävarusteena saarekemahdollisuus. Eteisessä on koko seinän levyiset liukuovikaapistot. Koko huoneistossa on modernit, kattoihin upotetut led-valot, jotka viimeistelevät tyylikkään ilmeen.

Asumismukavuutta lisää 11.4 m² lasitettu etelään suuntautuva terassi, joka toimii käytännössä toisena olohuoneena keväästä pitkälle syksyyn. Liukuovet ovat sisäpuolelta lukittavissa. Takapiha tuo lisää omaa rauhaa keskustan läheiseen asumiseen.

Lämmitysmuotona on kaukolämpö. Koko asunnossa on miellyttävä vesikiertoinen lattialämmitys, jonka kustannus sisältyy hoitovastikkeeseen. Autokatospaikka sisältyy kauppahintaan (arvo noin 8 000 €), ja siinä on varaus sähköauton lataukselle. Autokatoksen pistoketta voidaan ohjata suoraan asunnon eteisestä. Lisäksi huoneistolle kuuluu lämmin irtaimistovarasto talousrakennuksessa.

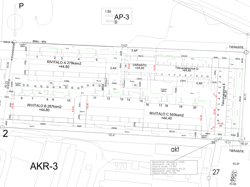
Yhtiön sijainti on poikkeuksellisen hyvä: rauhallinen päättyvän kadun oma päätytontti keskustan ja Ideaparkin välisellä alueella. Keskustan palvelut, rautatieasema, Ideapark, Frami ja Ammattikorkeakoulu sijaitsevat kaikki kävelyetäisyydellä, ja lähin ruokakauppa keskustan Lidl on noin 800 metrin päässä. Näin lähelle keskustaa valmistuu vain harvoin uusia rivitalohuoneistoja. Vastaavat kohteet naapurustossa on myyty jo rakennusvaiheessa.

Tässä kohteessa on mahdollisuus vaikuttaa pintamateriaaleihin, laatoituksiin, kuivien tilojen lattioihin sekä kiintokalusteisiin. Voit suunnitella asunnosta juuri itsellesi mieluisan kodin. Halutessasi voit sopia esittelyn viereiselle tontille saman rakentajan myytyyn lähes valmiiseen, samalla pohjamallilla toteutettuun kohteeseen.

Asunto soveltuu erinomaisesti myös sijoituskäyttöön, sillä vastaavia uusia rivitalokaksioita ei ole vuokramarkkinoilla näin lähellä ydinkeskustaa. Arvioitu vuokra autokatospaikan kanssa on noin 790 €/kk.

Tämä on ainutlaatuinen tilaisuus yhdistää oma rauha, moderni asuminen ja keskustan sekä Ideaparkin palvelut.

Varaa oma esittelyaikasi ja varmista asuntosi tässä uudessa yhtiössä.

-Ilmoituksen kuvat rakentajan aikaisemmasta saman pohjamallin kohteesta.

Lisätietoa ja varaukset:
Asuntoekonomi
Matti Leskinen
yrittäjä, KTM, LKV
julkinen kaupanvahvistaja
Puh. 040 8494 373
matti.leskinen@asuntoekonomi.fi

Varaa esittelyaika

Varaa esittelyaika

Kohdenumero 20860395
Sijainti Meijerikatu 6 B 9, 60320 Seinäjoki
Omistusmuoto Oma
Huoneistoselitelmä 2h, k, ph, s, lasit.terassi, autokatos, varasto
Huoneita Kaksio
Hallintamuoto Asunto-osakeyhtiö
Tyyppi Rivitalo (uudiskohde, osake)
Asuintilojen pinta-ala 44,50 m²
Pinta-alojen lisätiedot Yhtiöjärjestyksen mukainen huoneistoselitelmä ja pinta-ala: 2H+k+PH+S, 44,50 m2. Muut tilat lasitettu terassi 11,4 m2.
Kerros 1/1
Vapautuminen sopimuksen mukaan
Kohteen kunto Uusi
Energialuokka Ei lain edellyttämää energiatodistusta
Rakennusvuosi 2027
Käyttöönottovuosi 2027

Velaton hinta 164 900 €
Myyntihinta 82 450 €
Velkaosuus 82 450 €
Vuokrattu Ei
Vastikkeet
Hoitovastike 129,05 € / kk
Lisätietoa vastikkeista Vastikearvio 2,90 €/m2/kk. Rahoitusvastikkeen suuruus ei ole vielä tiedossa.

Muut maksut Lounea 500M/500M valokuitu/kaapeli-tv 14,95 €/kk.

Lämmitysmuodot
  • kaukolämpö
Oma sauna Kyllä
Antennijärjestelmä Kaapeli-tv
Uudiskohteen tila ennakkomarkkinoinnissa

Muut säilytystilat
  • muu erillinen varasto
Säilytystilojen kuvaus Autokatosrakennuksen yhteydessä lämmin varasto.
Katto
Kate Pelti
Rakennusmateriaalit
Käytetyt rakennusmateriaalit
  • puu
  • betoni
Keittiö
Keittiön varustelu Lattiamateriaali valittavissa parketti tai vinyyli. Seinissä maali, välitilassa levy. Tasot laminaatti.Kalusteisiin integroitu astianpesukone ja mikroaaltouuni, jääkaappi/pakastin, induktioliesitaso, erillisuuni, liesituuletin.Keittiöön on lisätilauksesta saatavilla saareke.
Kylpyhuone
Kylpyhuoneen kuvaus Laatta/kaakeli.Peilikaappi, allaskaapisto, pesukoneliitäntä, suihku, suihkuseinä, lattialämmitys.
Sauna
Saunan kuvaus Tuuletusikkuna.
Kiuas
  • sähkökiuas
Saunan lattia
  • laatta
Saunan seinät
  • puu
Makuuhuone
Makuuhuoneen kuvaus Vinyyli tai parketti. Seinät maalattu. Makuuhuoneen kaapistot eteisalueen kaapistorivissä. Mahdollisuus asentaa makuuhuoneeseen tarvittaessa lisäkaapisto.
1

Koko 4 977 m²
Omistus Oma
Kaavoitustilanne
  • Asemakaava
Kaavoitustiedot Seinäjoen kaupunki

Nimi As Oy Seinäjoen Meijerikatu 6 A-B
Isännöitsijän tiedot Ei ole vielä valittu
Huolto Ei ole vielä päätetty. Yhtiökokous päättää yhtiön valmistuttua.
Tehdyt remontit - uusi rakennus
Tulevat remontit - uusi rakennus
Taloyhtiön autopaikat
  • Autokatospaikkoja: 10
Huoneistojen lukumäärä 10
Taloyhtiössä
  • kaapeli-tv
  • Huoneistokohtaiset varastot
Taloyhtiössä muuta Asunnoissa autokatoksen sähköauton lataus- ja lämpöpistokerasian ohjaimet. Tontti jaettu hallinnanjakosopimuksella.

Esittelyaika 12.04. 14:00 - 15:00
yleisesittely
Lisätietoja Tervetuloa yleiseen näyttöön saman rakentajan lähes valmiisiin asuntoihin naapuritontille Niittäjänkatu 3A osoitteeseen sunnuntaina 12.4.2026 klo. 14.00-15.00. Rakennusliikkeen edustaja on paikalla näytössä. Mahdollisuus saada arvokasta rakentamiseen liittyvää tietoa suoraan rakentajalta!

Nimi Leskinen Matti
Sähköposti matti.leskinen@asuntoekonomi.fi
Puhelin 040 8494 373
Yrityksen nimi LKV Asuntoekonomitoimisto Oy
Toimiston nimi LKV Asuntoekonomitoimisto Oy

Yrityksen nimi LKV Asuntoekonomitoimisto Oy
Toimiston nimi LKV Asuntoekonomitoimisto Oy
Osoite Loukontie 7, Seinäjoki
Toimiston puhelin 040 8494 373
Toimiston sähköposti matti.leskinen@asuntoekonomi.fi
Takaisin kohdelistaan